枫尚华庭+140平+现代原木风
1个月前 收录
阅读:8.6万回复:154
剑桥郡学府水岸+129平+半包+现代
1个月前 收录
阅读:4.0万回复:110
温岭柳岸风景+128平+全包+现代轻奢+良工装饰
1个月前 收录
阅读:3.9万回复:35
旧房装修,比新房更让人操心+良匠装饰
1个月前 收录
阅读:7.3万回复:117
冠郡铭苑+100方+现代风+半包+良匠装饰
1个月前 收录
阅读:1.7万回复:15
文鼎苑+北欧日式原木风+142平+全包+品一装饰
1个月前 收录
阅读:5.5万回复:44
路桥阳光城璞悦府 140平 半包 现代简约
1个月前 收录
1,选房经历 自己看https://taizhou.19lou.com/forum-2012-thread-72481556425730003-1-1.htmlhttps://taizhou.19lou.com/forum-2012-thread-52061561
查看详情>>
阅读:5.5万回复:76
玉环华鸿142方的漫长装修
1个月前 收录
从2019年12月开始敲墙,到现在房子最后还在收尾,中间经历了一个漫长的疫情假期,外加因为陆续隔壁邻居先后入住,反而增加了各种装修时间的限制,节假日不允许装修,孩子上网课不允许装修,周末不允许装修,于是原先合同签订的5月底装修完工的目标,彻底就无限期延长了。其实感觉装
查看详情>>
阅读:5.9万回复:70
天禧嘉邸·120平·半包·新隆装饰
1个月前 收录
【小区名称】天禧嘉邸【量房面积】120平【户型】三室一厅一厨两卫【设计单位】新隆装饰【施工单位】台州新隆装饰【设计师】孙仕明(小孙,不但帅气,设计非常专业)【项目经理】廖师傅(非常有责任心,棒棒哒)【工程监理】林总(99个赞)【装修方式】半包【装修预算】25万 2020年9月16日,星期三,农历七月廿九,俗了一把。趁这个好日子9:18准时开工了,在新隆装
查看详情>>
阅读:2.8万回复:44
装修小白的老破小改造之路
1个月前 收录
总觉得现在很难沉下心来写一些文字,思考良久还是决定开个贴记录人生的第一次装修,对于各方面完全小白的我而言更希望通过这个形式在后期的装修过程中得到楼友们的指导。过程丰富,估计最后就会成为自己的碎碎念,生活不易,不喜勿喷。【买房之路】 先来简单说下买房之路吧
查看详情>>
阅读:10.5万回复:118
天韵北欧风小家装修日记—装修小白的绝望与期待
1个月前 收录
楼主尽可能心平气和地回忆自己的装修历程以及踩过的这些坑,之前真的因为甲醛超标的事情郁闷得有段时间失眠,一度想去**店里拉横幅(具体请看我另一个
查看详情>>
阅读:4.8万回复:34
天禧嘉邸·110平·现代轻奢风
1个月前 收录
开工有一段时间了,一直没有抽出时间记录一下。都在上班跟看材料的路上折腾着。先来上张我家客厅效果图看看。110平方到手实际上100平是没有的。本来感
查看详情>>
阅读:1.6万回复:37
星枫苑老房子·半包·轻奢风 ·良匠装饰
1个月前 收录
本来一直看的人民和二中的学区房,因为这个学区不需要户口,一直看的振兴小区,东升还有东方花园,还有华荣名筑,前前后后一共看了5次。一直看着看着,
查看详情>>
阅读:3.6万回复:45
130平赤贫风穷装 兵马未动,粮草先行
1个月前 收录
总算交房了,也不急着装修,打算骑驴找马慢慢来,不过赶上装修季就想着对装修物料先盘算盘算;本人对智能家居也挺感兴趣,所以找了个供货商专门出了个
查看详情>>
阅读:3.6万回复:74
吉利花园·143平+60平阁楼·50万预算
1个月前 收录
小区:吉利花园面积:143+60总预算:50装修形式(半包、全包、清包):半包 6月开始看的装修公司,那时候有家装节,量房活动。选了3家公司,其中有一家要求先去装修公司谈才会来量房,PASS。另外一家,加了之后也没怎么联系,也PASS了。最终只有一家来量房。19楼网红公司,新
查看详情>>
阅读:5286回复:6
中盛君廷·103平·现代轻奢·品东装饰
1个月前 收录
所在小区:路桥 中盛君廷装修公司:品东装饰装修方式:半包装修风格:现代轻奢装修预算:35万内(包含家具家电) 选择装修公司一二事 在去年考虑装
查看详情>>
阅读:3.4万回复:66
学诚小区·25万·全包·安乐窝
1个月前 收录
所在小区:椒江 学诚小区装修方式:全包装修公司:安乐窝装修预算:25万左右(含家电家具) 房子是2017年买的,买来后一直出租着。2019年开始关注一
查看详情>>
阅读:7.3万回复:57
买了二手老房子全拆从新装修·清包
1个月前 收录
今年开始看学区房,根据家庭的经济情况,只能买得起二手的老房子,但是装修居住又不想将就,自己天天月月年年给客户家装修,自己也想居住环境等稍微好
查看详情>>
阅读:1.7万回复:54
120平层超软耳根随波逐流式装修日记
1个月前 收录
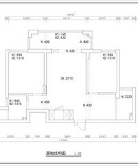
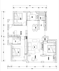
明溪花苑实用面积:120平方预算:20万装修公司:半包10万房本上的结构图最终定稿的大致结构6月初开始装修,至今有4个月了,目前已进入油工进场前的清场
查看详情>>
阅读:4071回复:6




