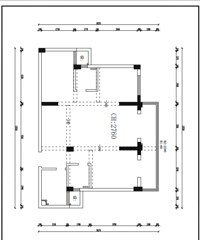
悦都天华+89+全包+现代+预算20W入住
1个月前 收录
阅读:2.2万回复:20
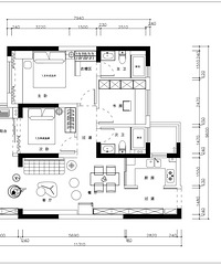
人才公寓+136平+自装+简约风+预算10W+
1个月前 收录
阅读:7613回复:14
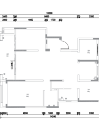
玖玺府璟园+85平+半包+盐系极简+预算15w
1个月前 收录
阅读:2.7万回复:30
海州上城+143平+半包+现代风格+预算50W
1个月前 收录
阅读:4.5万回复:64
翡翠云邸+102平+全包+我行我素风+预算30W
1个月前 收录
阅读:11.1万回复:141
翰林雅境+139㎡+半包+简约现代
1个月前 收录
阅读:2.2万回复:43




