凌晨的括苍山随记
1个月前 收录
阅读:2702回复:2
白白损失5000元,租房一定小心谨慎,史上最恶心房东
1个月前 收录
阅读:2.0万回复:54
黄岩“硅谷”来了!一期年底完工
1个月前 收录
阅读:3960回复:3
【假如地标会说话】椒江土著带你吃手打面和小插曲
1个月前 收录
阅读:1.6万回复:94
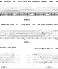
台州中央创新区吾悦广场要来了?工程规划批前公示中……
1个月前 收录
阅读:7062回复:16
【假如地标会说话】台州1号公路玉环龙脊线牛头颈
1个月前 收录
阅读:4633
【假如地标会说话】椒江太平山 —“一山观两岸,江海寄太平”
1个月前 收录
阅读:6747回复:3
有人叫我中国的“五渔村”,有人称我为小“圣托里尼”
1个月前 收录
阅读:3049




