女店员和消费者起争执,听到投诉后情绪崩溃朝顾客泼一脸咖啡粉!
1个月前 收录
阅读:5374回复:20
椒江请来老工匠修复,葭沚老街“旧貌”年底见
1个月前 收录
阅读:6518回复:15
9岁女孩从小区秋千跌落身亡!法院判设备公司赔107万,网友又吵翻
1个月前 收录
阅读:4146回复:5
家里成了“水帘洞”,天花板长青苔,台州一小区遭遇维修“卡脖子
1个月前 收录
阅读:4806回复:3
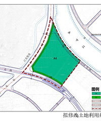
黄岩新体育馆要来了?拟选址在这↓
1个月前 收录
阅读:1.7万回复:24
玉环高铁站,主体结构开始施工
1个月前 收录
阅读:3578回复:2
台州交通将提级扩容!涉及高速公路、铁路、航空
1个月前 收录
阅读:7851回复:10
她说“你讲一万次又怎样!”路桥星光耀遛狗不牵绳的故事
1个月前 收录
阅读:5912回复:50




