选了个20年房龄二手房 打算15万搞定
1个月前 收录
整个拆旧包括垃圾运送花费3000元不到,宣传下我家小工,硬生生两天的活一天干完了,给400工钱还只收了280.
查看详情>>
阅读:5.6万回复:42
防水品牌型号选择和讲价技巧
1个月前 收录
防水品牌型号选择和讲价技巧 目前椒江实体建材市场比较火的三个牌子:徳高、雨虹、牛元。徳高。家装防水涂料有两种类型:js防水涂料和K11防水涂料。内墙用k11,外墙用js。
查看详情>>
曝光:打墙被坑全过程
1个月前 收录
我家这个泥水工好黑,好贪,脸皮好厚。事情经过是这样的,朋友介绍说这泥水工干活好,人看上去也本份(十年前在他家做过)。[[2017-07-05-17-30]]推荐
查看详情>>
阅读:2.0万回复:18
选一套适合的房子 真是斗智斗勇的过程
1个月前 收录
不但是脑力活,更是一项体力活,选房选到眼花,看房看到想吐。要考虑家里的所有成员要求。历时8个月的选房看房啊
查看详情>>
阅读:8.2万回复:71
瓷砖要多花1倍价格买品牌吗?
1个月前 收录
东鹏,马可波罗等大品牌的低价砖大概一两百一片,陶瓷城没什么名气的广东砖,看着差不多,7/80一片,应该怎么选?有必要买大牌子的吗?
查看详情>>
阅读:3.7万回复:41
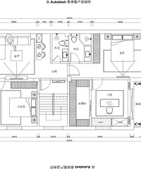
永宁公馆143平中式开装 看看我的设计图
1个月前 收录
阅读:9.6万回复:88
1500一套:选择盼盼木门VS椒江本地木门厂
1个月前 收录
盼盼木门据销售说是内部塞松木条,外边用单层板包边。椒江本地木门厂是多层板材,估计有7至12 层钉起来
查看详情>>
阅读:2.1万回复:34
我自家主卧厕所扩大 结果楼下的来闹不同意
1个月前 收录
家里装修设计缘故,主卧厕所向外移了半米原有的一面墙拆了重新砌的,楼下的跑上来说我拆墙不跟他说,要我把现在的墙拆掉
查看详情>>
阅读:3.0万回复:58
加了个假梁 发现很压抑 怎么办?
1个月前 收录
阅读:2.6万回复:18
先木工还是先瓷砖 装修公司因便利忽悠我?
1个月前 收录
现在纠结了之前装潢公司跟我们说的是做好先木工,这样后续不会划掉瓷砖,但我亲戚(资深贴瓷砖的老师傅)说肯定是先瓷砖再木工的。
查看详情>>
阅读:7.6万回复:27
看中马可波罗家仿古砖 可亲戚说不好打理?
1个月前 收录
阅读:2.8万回复:22
78平老房二胎家庭 3平独卫有必要隔俩吗
1个月前 收录
98年的老房子,原格局2室2厅一厨一卫一阳台,全明!卫生间约3平左右,老公打算隔成2个小卫生间,试问大咖们有必要吗?
查看详情>>
阅读:1.8万回复:13
门越高越好?从普通2.1到2.5加价不少
1个月前 收录
装修经理说门做高点好看,做到顶大概2.5米,门实高大概2.4米,原来家里好像就2.2米左右。 经理说现在都做高的门了
查看详情>>
阅读:2.8万回复:14
用火烧 装修小白也能学会的鉴别强电材料好坏的方法
1个月前 收录
【装修日记】美国很远,美式很近
1个月前 收录
风 格:简约美式装修公司:博大装饰设 计 师:陈志豪项目经理:李 斌户 型:二室一厅一厨一卫建筑面积:93㎡主要用材:千年舟板材、好美家地板?
查看详情>>
阅读:6.8万回复:90
【装修日记】简单实用的北欧风格自建婚房
1个月前 收录
开工咯!装修小白装修自己的婚房,走了不少弯路,在这里全程分享给大家,希望大家有则改之,无则加勉,装修真是累,上班迟到次数都增多了。因为我们预
查看详情>>
阅读:4.9万回复:60
【家居建材团购第二期】床、木门、指纹锁、马桶...这里都有
1个月前 收录
苦恼建材家居报价太贵?觉得说破嘴皮砍价心累?现在统统不是事儿!19楼携手合作建材家居商家帮你省钱!床、茶几、木门、电视机、指纹锁、智能马桶....
查看详情>>
阅读:3.0万回复:53




