路桥区老台州客运南站地块改建方案 效果图出来了
1个月前 收录
阅读:2.5万回复:43
路桥旧城区块1号安置小区建筑方案出炉啦
1个月前 收录
阅读:2.3万回复:32
台州楼市2018年10月开盘预告
1个月前 收录
阅读:3.3万回复:18
万科季度会主题:活下去!
1个月前 收录
阅读:1.8万回复:22
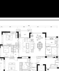
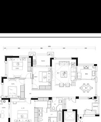
方远天璟御府样板房全装修配置清单
1个月前 收录
阅读:2.2万回复:13
这地下室面积怎么看?别的小区地下室也不隔开么?
1个月前 收录
阅读:1.8万回复:42
景瑞枫云府怎么样?销售说毛坯要两万多一平
1个月前 收录
阅读:6.4万回复:41




