黄岩体育馆迁建新址曝光?拟选址在这……
1个月前 收录
阅读:4069回复:1
起拍价1.64亿!天台一热门地块即将拍卖
1个月前 收录
阅读:1995
2024新财富500创富榜!房地产跌下神坛
1个月前 收录
阅读:4618回复:2
最高5.6万元/㎡!椒江江畔雲墅一房一价表公布
1个月前 收录
阅读:1.7万回复:29
台州一周卖房超8亿!温岭领跑|楼市周报
1个月前 收录
阅读:4856回复:6
新城速度!又分了1248套房!还有配套幼儿园和养老中心
1个月前 收录
阅读:5821回复:3
城东新盘交付在即来一组无修图无滤镜实拍
1个月前 收录
阅读:8489回复:25
后期天系产品最大的进步就是跟上了星空顶吧
1个月前 收录
阅读:4150回复:10
6.8亿!路桥龙头王社区约155亩地块拍出!享路桥小学学区
1个月前 收录
阅读:9805回复:21
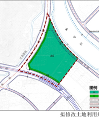
批后,椒江商业街开元广场所在区块规划修改!
1个月前 收录
阅读:6670回复:10




