阅读数: 75848 | 回复数: 25

V13 发表于: 2019-10-18 09:14
公示内容包括:
1、项目销售现场信息公布
    (1)证件信息
    (2)文件信息
    (3)项目信息
    (4)物业信息
    (5)特别提示

    (6)诚信经营承诺书

2、项目概况信息公布
   
3、交付材料列表
  • 人赞过
查看更多
V13
发表于: 2019-10-18 09:50

项目销售现场信息公布——(1)证件信息

项目销售现场信息公布——(1)证件信息
海尚望府项目相关信息公示
 营业执照
海尚望府项目相关信息公示
资质证书
海尚望府项目相关信息公示
土地证书
海尚望府项目相关信息公示
用地规划许可证
海尚望府项目相关信息公示
建设工程规划许可证
海尚望府项目相关信息公示
建筑工程施工许可证(含全装修)
海尚望府项目相关信息公示
预售证12、17、22、23幢
海尚望府项目相关信息公示
节能审查意见书

V13
发表于: 2019-10-18 10:02

项目销售现场信息公布——(2)文件信息

项目销售现场信息公布——(2)文件信息
1、海尚望府商品房买卖合同备案稿下载
2、住宅使用说明(下载
海尚望府项目相关信息公示
 
海尚望府项目相关信息公示
 
海尚望府项目相关信息公示
 
海尚望府项目相关信息公示
 
海尚望府项目相关信息公示
住宅使用说明书附图--A1
海尚望府项目相关信息公示
住宅使用说明书附图--B1
海尚望府项目相关信息公示
住宅使用说明书附图--C1
海尚望府项目相关信息公示
住宅使用说明书附图--D1
海尚望府项目相关信息公示

V13
发表于: 2019-10-18 10:04

项目销售现场信息公布——(3)项目信息

项目销售现场信息公布——(3)项目信息
海尚望府项目相关信息公示
 

V13
发表于: 2019-10-18 10:07

项目销售现场信息公布——(4)物业信息

项目销售现场信息公布——(4)物业信息
1、海尚望府临时管理规约下载
2、海尚望府前期物业服务协议下载
3、物业用房情况
海尚望府项目相关信息公示
 

V13
发表于: 2019-10-18 10:12

项目销售现场信息公布——(5)特别提示

项目销售现场信息公布——(5)特别提示
海尚望府项目相关信息公示
 红线内不利因素(地上)
海尚望府项目相关信息公示
 红线内不利因素(地下)
海尚望府项目相关信息公示
 红线外不利因素
海尚望府项目相关信息公示
 购房提示
海尚望府项目相关信息公示
买卖税费
海尚望府项目相关信息公示
放心购房温馨提示
海尚望府项目相关信息公示
项目差异户型公示1
海尚望府项目相关信息公示
项目差异户型公示2

V13
发表于: 2019-10-18 10:14

项目销售现场信息公布——(6)诚信经营承诺书

项目销售现场信息公布——(6)诚信经营承诺书
海尚望府项目相关信息公示
 

V13
发表于: 2019-10-18 10:20

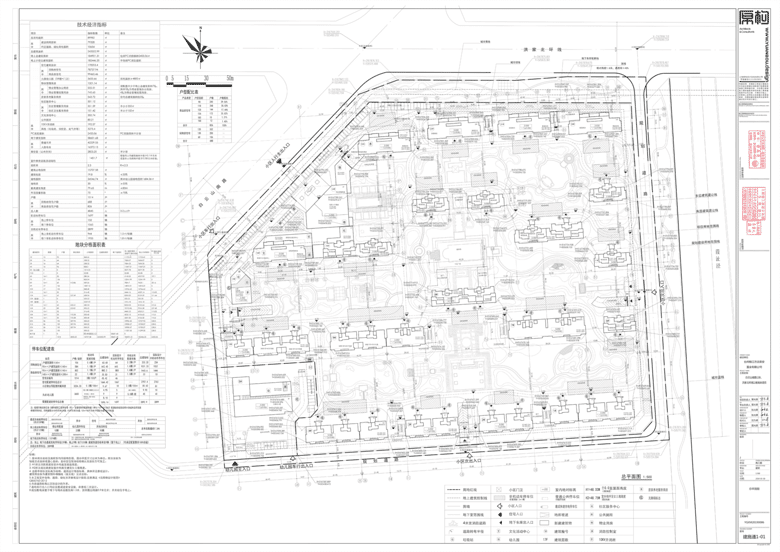
项目概况信息公布

海尚望府项目概况信息
 
 
规划用地面积:79328㎡
总建筑面积:243502.99㎡
建设单位:台州椒江方远荣安置业有限公司
施工单位:方远建设集团股份有限公司
监理单位:台州市建设咨询有限公司
设计单位:上海原构设计咨询有限公司
建设开工日期:2019年7月26日
完工时间: 2022年5月30日
 
 
主要经济技术指标:
容积率:2.3
绿地率:30
建筑密度:19.8%
建筑限高:80m

建筑总平面图(下载)
海尚望府项目相关信息公示
 


V13
发表于: 2019-10-18 10:33

交付材料表

交付材料表(下载
海尚望府项目相关信息公示
 

海尚望府项目相关信息公示
案场公示1
海尚望府项目相关信息公示
案场公示2
海尚望府项目相关信息公示
沙盘
海尚望府项目相关信息公示
沙盘1
海尚望府项目相关信息公示
售楼处1
海尚望府项目相关信息公示
售楼处2

样板房信息
海尚望府项目相关信息公示
样板房
海尚望府项目相关信息公示
样板房
海尚望府项目相关信息公示
样板房
海尚望府项目相关信息公示
 
样板房
海尚望府项目相关信息公示
样板房
海尚望府项目相关信息公示
样板房
海尚望府项目相关信息公示
样板房
海尚望府项目相关信息公示
样板房
海尚望府项目相关信息公示
样板房
海尚望府项目相关信息公示
样板房
海尚望府项目相关信息公示
样板房
海尚望府项目相关信息公示
样板房
海尚望府项目相关信息公示
样板房


V14
勋章 勋章
发表于: 2019-10-22 14:23 Android客户端

房产小白问个问题,为什么要搞两个名字,备案名和推广名?
超版 发表于: 2019-10-22 14:44

【备案名】:所谓备案名,是开发商向房产管理部门申请报批时使用的名称。一般来说,在一个新盘对外销售之前,会经历报批报建、环境影响评估、申领预售证等多个流程,这期间提交的楼盘备案名可以更改。一旦开发商取得楼盘预售证,并在网上房地产进行公示,楼盘备案名就正式确定,无法改变,即这个楼盘的标准名。

【推广名】:楼盘的推广名,是项目在进入销售准备阶段、进行宣传推广时使用的名称。
V10

实人认证

发表于: 2019-10-22 20:54 Android客户端

一样后续能补充慢悦湾的
V14
勋章 勋章
发表于: 2019-10-22 21:21 iPhone客户端

前几天有人说这个盘没有土地证,这下打脸了
勋章 勋章
发表于: 2019-10-22 21:43 iPhone客户端

这次开好像是6 11 20 21看样子好像房源不少
V3 发表于: 2019-10-23 04:42 手机版

呵呵,打什么脸?什么叫“土地证”您知道吗?“土地证”的全称是“国有土地使用权证”,最后办理房产证必须得有它!
V10
勋章 勋章
发表于: 2019-10-23 06:52 Android客户端

还喋喋不休说没土地证,真是佛了,杠精本精么?
V10
勋章 勋章
发表于: 2019-10-23 09:17 Android客户端

用料很一般啊!500内的标准
V14
勋章 勋章
发表于: 2019-10-23 17:26 iPhone客户端

我是卖房子的,你和我讲这个?
V3 发表于: 2019-10-24 10:15

后天开始

 
V10 发表于: 2019-10-24 10:52

好像是少了国有土地使用权证,我们通常所说的开发商应当具备的“五证”是指:1、《国有土地使用权证》;2、《建设用地规划许可证》;3、《建设工程规划许可证》;4、《建筑工程施工许可证》;5、《商品房预售许可证》。
V4 发表于: 2019-10-24 11:07 手机版

卖房子的不知道没预售证卖房是犯法的嘛?
V7 发表于: 2019-10-24 12:26 Android客户端

能拍全一点的吗?
V14 发表于: 2019-11-12 10:25 Android客户端

这个确实没有土地证,看来你不是很懂,这个只是规划书,以后办理房产证需要国土部门发的土地使用证书。
V5
勋章
发表于: 2021-05-01 12:42 Android客户端

这些天怎么好多海尚业主反应房子的好多标准和材料品质降低。到底怎么个情况?

快速回帖 使用(可批量传图、插入视频等)

表情
写好了,发布  Ctrl + Enter 快速发布